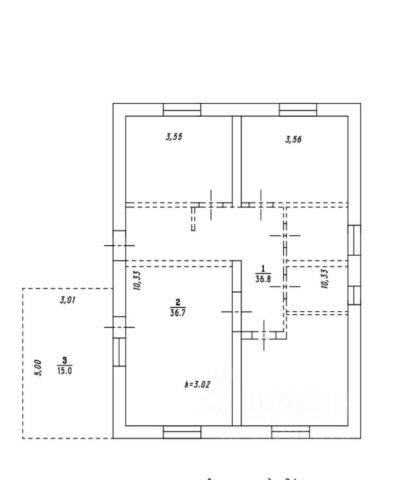
На чистой продаже дом 2024 года постройки. Подходит под сельскую ипотеку-ставка 3% Жилая площадь 88.3 кв.м, цокольный этаж 88 кв.м. свободной планировки, высота потолков цокольного этажа 2.6. Расположен на участке 10 соток категория земли ИЖС. Участок отмежован. Состоит из двух спален, просторная кухня совмещенная с гостиной, санузел, гардеробная, коридор. Потолки высотой 2.80, это с учетом натяжного потолка уже. В доме установлены качественные окна фирмы Veka. Что касается самого дома, то цоколь выполнен из фас блоков, произведено утепление, а также гидроизоляция цоколя. Сам дом выложен из керамзита блоков (1,5 блока-60 см), каждый ряд дополнительно заливался пенобетоном для дополнительного утепления дома. Перекрытия пола и потолка выполнены из железобетонных плит. В доме выполнена чистовая отделка стен, залит наливной пол, натяжные потолки и установлены светильники. Проводка в доме медная, сечение 2.5 на свет и 3.5. на розетки. В ванной комнате сделана гидроизоляция стен (под плитку). Входная дверь с терморазрывом. Кровля, мягкая черепица шинглас. Отопление электричество. Установлен газовый котёл . Газ проходит по границе участка с возможностью подключения по программе догазификация-бесплатно, внутрянка по дому разведена , остается только провести газ от участка до дома-стоить это будет примерно 60тр. Водопровод центральный проведен в дом, дополнительно имеется скважина. Канализация септик- 3 куба. Место высокое, сухое. Парковка перед домом на четыре авто-место под парковку выложено ж/б плитами. Дорога до дама отсыпана. В поселке имеется школа, детский сад, фап, много магазинов. До города 10 мин на машине. Подходит под сельскую ипотеку-ставка 3%.



















































































