120 839 ₽/м²
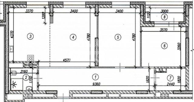
За квартиру внесен аванс. Продается светлая и просторная квартира. Изначально это была 3-комнатная квартира, но выполнена узаконенная перепланировка, которая позволила получить 4 изолированные комнаты. Это идеальный вариант для семьи с детьми или для тех, кому нужно личное пространство и функциональное зонирование. Ключевые особенности: Планировка: 4 отдельные комнаты. Перепланировка официально узаконена, все документы в порядке - покупка будет чистой с юридической точки зрения. Остекление: Два балкона. Окна выходят на две стороны (во двор и на улицу), что обеспечивает отличную циркуляцию воздуха и естественное освещение в течение всего дня. Состояние: Косметический ремонт выполнен 1,5 года назад, квартира в идеальном состоянии "под ключ". Вам не потребуется вкладывать средства сразу после переезда. Коммуникации: В доме есть газ, что значительно экономит расходы на коммунальные услуги по сравнению с электричеством. Установлены новые радиаторы отопления. Детали: Установлены новые межкомнатные двери. Теплых полов нет, что исключает сложности с обслуживанием и лишние затраты на электроэнергию. Квартира расположена в развитом районе: развитая инфраструктура, транспортная доступность, магазины, школы и детские сады в шаговой доступности. Отличный вариант для большой семьи или тех, кто ценит пространство и продуманную планировку. Звоните/пишите, покажем любое удобное для Вас время! Номер объекта: #1/537014/24443










































































