


122 222 ₽/м²
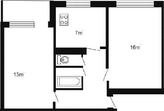
В связи с переездом в другой город продается светлая и очень теплая 2х комнатная квартира. Планировка включает в себя две изолированные комнаты, кухню, гардеробную, сан узел совмещенный. В квартире выполнен хороший ремонт с использованием качественных материалов. Окна ПВХ, современные радиаторы отопления, хорошие межкомнатные двери, 2х уровневые потолки, кондиционеры, в ванной теплый пол, водонагреватель. В квартире остается практически вся мебель и бытовая техника. Закрытый двор. Видеонаблюдение. Хорошие соседи. Есть место для хранения вещей. Очень хорошо развита инфраструктура: во дворе детский садик, в шаговой доступности школа, магазины, аптеки, Ледовый дворец, остановка общественного транспорта, откуда можно уехать в любую точку города. Вы можете купить этот объект через ипотеку, в том числе военную, а также через любые виды сертификатов. Вам нужна ипотека? Наши партнеры - ведущие банки Омска, поэтому мы оформляем ипотеку по сниженным ставкам сразу в нескольких банках, что значительно экономит ваше время и деньги. Все документы готовы к сделке и прошли юридическую экспертизу. Звоните и записывайтесь на просмотр!



















































































