


124 018 ₽/м²
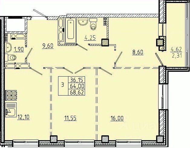
Предлагаем Вам приобрести уютную и комфортную 3 -ком квартиру в доме "Комфорт-класса" от Застройщика ! ДОМ СДАН в марте 2022 года и входит в Жилой комплекс "Енисейский". Летом 2022 года данный жилой комплекс был признан Победителем ТОП ЖК в 2022 году. Способы приобретения квартиры: - 100% наличный расчёт - Семейная ипотека со ставкой от 6 % - Семейная ипотека с субсидированием от Застройщика со ставкой от 3,5% - Комбо-ипотека - Сроки кредитования до 30 лет - Беспроцентная рассрочка (условия индивидуальные) Современный "Комфорт-класса" ЖК "Енисейский" расположился в центре Левобережья, с развитой инфраструктурой и удобной транспортной развязкой. НАДЁЖНЫЙ ДОМ КИРПИЧНЫЙ ДОМ ! - Отличительной особенностью жилого комплекса является низкая плотность застройки, обеспечивающая камерность и большое количество естественного света. Преимуществом строительства является использование прочного материала кирпича, за счёт этого дом является тёплым и комфортным! Кирпич по праву считается самым надёжным материалом для строительства. Он обеспечивает высокую шумоизоляцию в квартире, а также формирует комфортную температуру, как внутри квартиры ,а также и в местах общего пользования в любое время года. Именно поэтому для строительства мы выбрали качественный огнеупорный, износостойкий керамический кирпич. - Наружные стены: толщина 640 мм, кладка 2,5 кирпича. - Также в 3-х ком квартире просторные балконы со стильным французским остеклением в пол - станут отличным пространством для отдыха или альтернативой рабочему кабинету В жилом доме выполнена сквозная подъездная группа, а также пандусы. На 1 этаже предусмотрено помещение под колясочную и велосипедную, плюс дополнительно на каждом этаже выделено помещение под колясочную, это придаёт дополнительный комфорт и удобство в местах общего пользования. Безопасный и быстрый лифт Качественное лифтовое оборудование гарант вашей безопасности, именно поэтому мы выбрали лифт "Сапсан" грузоподъёмностью 630 кг, изготовленный в соответствии с ГОСТ. Просторная купе кабина из текстурированной нержавеющей стали Deco 8, позволит транспортировать крупногабаритные предметы. За плавность хода отвечает главный привод с частотным преобразователем. Внутри кабины установлены поручни по трём сторонам купе из шлифованной нержавеющей стали, светодиодное освещение, световое табло, кнопки с азбукой "Брайля". Благоустройство: Благоустроенная, оборудованная современными детскими комплексами , с большим количеством зелёных насаждений, хорошо освещённая территория комплекса, позволит вам проводить уютные вечера вместе с детьми, не отходя далеко от дома, ведь безопасные детские площадки станут местом притяжения для самых маленьких жителей. Также дополнительным преимуществом благоустройства является концепция " Двор без машин ", тем самым опять же дополнительная безопасность и комфорт проживания для жителей данного жилого комплекса ! Данная квартира, станет не только уютным и комфортным местом проживания, но ещё и хорошей инвестицией ! Звоните !












































































































