


194 654 ₽/м²
Продается 2-к квартира без отделки в ЖК "Зеленая Река". Общая площадь квартиры — 56.2 кв. м, этаж 3 из 4. Тип дома — монолитный. Цена указана при 100% оплате.






194 654 ₽/м²
Продается 2-к квартира без отделки в ЖК "Зеленая Река". Общая площадь квартиры — 56.2 кв. м, этаж 3 из 4. Тип дома — монолитный. Цена указана при 100% оплате.

164 815 ₽/м²
О жилом комплексе Дом на Дианова ЖК Дом на Дианова находится в Кировском округе города Омска. В 8-этажном монолитно-кирпичном доме 2 подъезда. Застройщик ООО СЗ Вита. Преимущества ЖК Дом на Дианова: Основу инфраструктуры двора составляют озеленение, ландшафтный дизайн, тротуары без машин, декоративные заборы и зонирование территории при помощи различных покрытий и бордюров. Просторная детская площадка с комплексами для активного отдыха и занятий спортом. При её строительстве мы используем только экологичные материалы и специальные безопасные покрытия. Удобный въезд с ул. Дианова, большие парковочные площади и остановки с транспортными маршрутами в любую точку города дом находится в 2 минутах от остановки Дорстрой. Рядом с ЖК Дом на Дианова расположены супермаркеты, торговые комплексы, ресторан, детская поликлиника, школы, детский сад, стоматологические клиники. Высота потолков 2,72 м.



106 383 ₽/м²
Предлагается к приобретению просторная квартира в современном жилом комплексе в активно развивающемся районе города. Сдача объекта запланирована на ноябрь 2025 года. Квартира сдаётся с качественной черновой отделкой, что предоставляет новому собственнику полную свободу для реализации индивидуальных дизайнерских решений. В базовую комплектацию уже входят остекление, входная дверь, радиаторы отопления, выполнены штукатурные работы и стяжка пола, электричество разведено до щитка. Микрорайон обладает развитой социальной и коммерческой инфраструктурой: в шаговой доступности расположены школы, детские сады, магазины и гипермаркеты, обеспечивающие повседневные потребности. Транспортная доступность является одним из ключевых преимуществ локации. Перспективы района включают создание благоустроенной набережной и прогулочной зоны, а также наличие спортивных объектов, таких как G-Drive арена, что формирует комфортную городскую среду для жизни и досуга. Объект представляет собой выгодную инвестицию в недвижимость с высоким потенциалом роста стоимости благодаря динамичному развитию территории и высокому качеству строительства.






151 293 ₽/м²
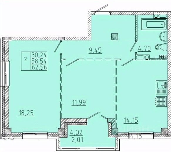
Продаётся 2-комнатная квартира в строящемся доме (Строение 3), срок сдачи: III-кв. 2026, общей площадью 50.1 кв.м., на 7 этаже.



139 098 ₽/м²
Дом монолитно-кирпичный 2024г. Хорошая транспортная развязка. Есть наземная парковка, детская площадка, велодорожки. Квартира с удобной планировкой. Высокие потолки добавляют ощущение простора и света. Квартира расположена на 7 этаже 11 этажного дома. Очень красивый панорамный вид из окон. Просторная кухня 12.3 квм.



110 020 ₽/м²
Вашему вниманию предлагается отличная 2-комнатная квартира в ЖК "Весна". Жилой комплекс расположен вдоль Иртыша. Один из самых комфортных этажей - пятый. Отделка - черновая. В дом уже заведена вода, установлены радиаторы, стояки горячей и холодной воды, канализационные трубы, а также лифты Срок сдачи - 4 квартал 2025 года. Полная инфраструктура: от магазинов до кофеен, детский сад, парикмахерские, гипермаркет "Лента", в шаговой доступности спорткомплекс "G Drive Арена". Покупателям - помощь в сопровождении сделки. Цена актуальна до конца ноября. Ближе к сдаче дома она будет повышаться.






163 445 ₽/м²
Продаётся 2-комнатная квартира в сданном доме (3-я Енисейская, 28/1), срок сдачи: I-кв. 2022, общей площадью 57.4 кв.м., на 10 этаже. Льготная ипотека с субсидированием от Застройщика со ставкой от 5%! Квартиры класса "эконом-комфорт" от надежного застройщика "Сибирский строитель", станут хорошей инвестицией для вашей семьи. Отличительной особенностью комплекса является низкая плотность застройки, обеспечивающая камерность и большое количество естественного света. Преимуществом строительства является использование прочного материала кирпича. В проекте представлены планировочные решения на любой вкус, на выбор клиента квартиры свободной планировки, а также объекты с межкомнатными перегородками. Благоустроенная, хорошо освещенная территория комплекса позволит вам проводить уютные вечера вместе с детьми, не отходя далеко от дома, ведь безопасные детские площадки станут местом притяжения для самых маленьких жителей.



150 000 ₽/м²
Видовая евродвушка, квартира с предчистовой отделкой и разведёнными инженерными сетями в современном ЖК Кварталы Драверта на 12 этаже. Энергоэффективные, с высоким уровнем шумопоглащения окна выходят в сторону ул. Шаронова. Общая площадь квартиры: 48.6 кв.м., жилая: 12,4 кв.м., площадь просторной совмещенной кухни-гостиной: 19.3 кв.м. Высота потолков 2.7 м. Дом монолитный, с кирпичными стенами и утеплённым фасадом. Застройщиком дома являлась федеральная группа компаний ''Брусника''. Ввод в эксплуатацию: февраль 2025г. Этажность дома 17 этажей с современным подземным паркингом, оборудованными помещениями под хранение велосипедов и колясок. Также существует возможность приобретения или аренды места в подземном паркинге и кладовки для хранения вещей. В подъезде 2 больших пассажирских лифта (производитель ''KOYE''), грузоподъемностью 1600 кг каждый. Вход в подъезд на уровне земли с улицы и со двора. Всего 50 метров до автобусной остановки:''Бульвар Кузьмина'' и ул. Крупской. Все общедомовые пространства (входные зоны, лифтовые и межквартирные холлы) выполнены в современном стиле и отвечают самым высоким стандартам. Дом застроен в рамках комплексной застройки ЖК ''Кварталы Драверта'' с дальнейшим формированием большой социальной инфраструктуры, включающей в себя: новую школу, дет. сады, общественно-деловые и спортивные учреждения. Большой, огороженный внутренний двор (вход только для жителей дома), в котором нет машин, а есть многочисленные пешеходные зоны, вымощенные тротуарной плиткой со скамейками, детские игровые зоны и современные ландшафтные решения с многочисленными кустарниками и деревьями (в т.ч. крупномерными).



100 000 ₽/м²
Срочно! Ограниченное уникальное инвестиционное предложение для юридических лиц, до начала продаж. Предлагается к продаже квартира в новом жилом комплексе по адресу: г. Омск, ул. Ватутина-Новороссийская. Основные характеристики: * Тип дома: монолитный * Высота потолков: 3 м * Отделка: White Box - Черновая отделка под чистовую, без перегородок, сан. узел огорожен, установлена входная дверь, подведены всех коммуникации (возможность реализации индивидуального дизайнерского проекта) * Сдача дома: 3 квартал 2026 года Условия продажи: * Продажа осуществляется по договору инвестирования между юридическими лицами Преимущества: * Расположение в экологически чистом районе, окруженном березовой рощей * Уникальный архитектурный проект индивидуальной застройки * Надежный застройщик с многолетним опытом, репутацией, собственными производственными мощностями и оборотными средствами * Развитая инфраструктура: рядом школы, детские сады, торговые центры * Удобная транспортная доступность * Высокий потенциал роста стоимости недвижимости по данному объекту (более 50%) * 3 минуты ходьбы до парка 300-летия Омска






179 494 ₽/м²
Продается 2-к квартира без отделки в ЖК "Зеленая Река". Общая площадь квартиры — 68.9 кв. м, этаж 5 из 9. Тип дома — монолитный. Цена указана при 100% оплате.



157 097 ₽/м²
Компания недвижимости Квартсервис предлагает к продаже 2-комнатную квартиру в новом современном ЖК "Кварталы Драверта". О квартире I очередь, секция 3, дом сдан! Ключи получены, показ в любое время! Право собственности на квартиру зарегистрировано! Строительство ведет федеральный застройщик "Брусника", что говорит о высочайшем качестве выполненных работ. Планировка квартиры площадью 63 м2 очень эргономична и включает в себя: • просторную и светлую кухню-гостиную площадью 21,7 м; • две изолированные спальни, расположенные по разные стороны квартиры; • совмещенный санузел площадью 4,25 м. Квартиры сдаются с предчистовой отделкой. Ремонт: межкомнатные перегородки выполнены из гипсокартона. Пол залит цементно-песчаной стяжкой с утеплителем, горизонтальная разводка системы отопления, проведена электрика, сделаны выводы под сантехнику, нанесена обмазочная гидроизоляция в ванных комнатах, установлен фильтр для притока свежего воздуха. Также в квартире установлены радиаторы отопления и приборы учета, показания которых автоматически передаются в управляющую компанию благодаря системе телеметрии. О доме: концепция проекта уникальна для нашего города. Двор полностью закрыт от машин, на данный полностью выполнен ландшафтный дизайн, высажены крупномеры, кустарники, цветы, организованы площадки для детского и семейного отдыха. Также возле дома организуют спортивные площадки. Вход в подъезд прозрачный и находится на уровне земли, что безопасно и удобно для мам с колясками, велосипедистов и пожилых людей. Есть возможность приобрести или арендовать место в подземном паркинге и кладовку для хранения вещей. Расположение Жилой комплекс расположен между улицами Шаронова и Крупской; с центром его связывают два моста — имени 60-летия ВЛКСМ и 60-летия Победы. В пешей доступности находятся продуктовые магазины, кафе, аптеки, детские сады и остановки общественного транспорта. Уникальное предложение для владельцев недвижимости. •Если у вас есть непроданная недвижимость, у нас есть решение! Мы предлагаем программу Trade-in, которая позволит вам использовать вашу старую недвижимость в качестве оплаты за новую. •Нужна ипотека? Компания Квартсервис работает с ведущими банками, чтобы предложить вам выгодную ипотеку с низкими ставками! Это ваша возможность сэкономить время и деньги. •Все необходимые документы уже готовы и прошли юридическую экспертизу. Не упустите возможность стать владельцем этой отличной квартиры в ЖК комфорт-класса — свяжитесь с нами для получения дополнительной информации и организации просмотра! обл. Омская, г. Омск, ул. Б.Г.Шаронова, д. 9 Арт. 113320903



84 388 ₽/м²
Центр недвижимости и ипотеки ТандемТ предлагает вам уникальную возможность приобрести двухкомнатную квартиру в Кировском округе по адресу: Лукашевича, д. 19. Основные характеристики квартиры: • Общая площадь: 47.4 м² • Планировка: на две стороны • Наличие места под гардеробную • Этаж: 4-й • Состояние: полностью под ремонт Дополнительные преимущества: • Подъезд в отличном состоянии • Установлены видеодомофоны и камеры видеонаблюдения по всему периметру дома • Удобное расположение: рядом автовокзал В Центре ТандемТ мы гарантируем безопасное и комфортное сопровождение каждой сделки. Наша компания является членом Омского Союза риэлторов и Российской Гильдии риэлторов, что подтверждает наш высокий уровень профессионализма и надежности. Если у вас возникли вопросы или вы хотите записаться на просмотр квартиры, не стесняйтесь обращаться к нам! Мы всегда рады помочь! Номер объекта: #1/537513/24613






149 007 ₽/м²
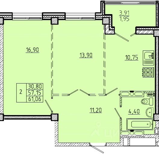
Продаётся 2-комнатная квартира в строящемся доме (Строение 3), срок сдачи: III-кв. 2026, общей площадью 49.84 кв.м., на 16 этаже.



177 116 ₽/м²
Квартира с предчистовой отделкой в современном жилом комплексе от Брусники КЛЮЧЕВЫЕ ПРЕИМУЩЕСТВА: — Дом сдан, все готово к ремонту! Заедете уже в этом году! — Просторные светлые изолированные помещения с увеличенными окнами, которые выходят на 2 стороны: юго-восток и юго-запад. Наслаждайтесь естественным освещением и живописными видами восходов и закатов. — Свобода для дизайна: предчистовая отделка (ровные стены из гипсокартона, выровненные полы, разведенная электрика) позволяет воплотить любые интерьерные решения. — Удобная планировка: прихожая оборудована специальной нишей под гардеробную, обеспечивая дополнительное удобство хранения вещей. — Эстетично оформленные входные группы создают приятное первое впечатление. ИНФРАСТРУКТУРА И ЛОКАЦИЯ: — Развитая транспортная доступность: всего за 15 минут через мосты им. 60-летия ВЛКСМ и 60-летия Победы вы окажетесь в центре города. — Шаговая доступность всей необходимой инфраструктуры: детские сады, школы, медицинские учреждения, продуктовые магазины, кафе, аптеки и остановки общественного транспорта. — Облагороженная придомовая территория включает великолепные детские игровые площадки, живописные прогулочные зоны, уютные беседки и места для отдыха, а также подземный паркинг. Покупателю поможем в одобрении ипотеки под наиболее выгодный процент, в том числе и с использованием материнского капитала! Наша компания является официальным партнёром всех банков города, благодаря чему для наших клиентов ипотечная ставка будет меньше от 0,3% до 0,6% за счёт наших партнёрских привилегий. При необходимости сможем быстро и выгодно продать Ваш объект и подобрать лучший обменный вариант. Гарантируем юридически безопасное и комфортное сопровождение сделки. Агентство недвижимости ГЮЦН ЭТАЛОН оказывает полный комплекс услуг на рынке недвижимости уже более 20 лет и является действующим членом Омского Союза риэлторов, Российской Гильдии риэлторов. Звоните, будем рады показать квартиру в удобное для Вас время!



116 592 ₽/м²
Продаётся просторная квартира бизнес-класса Уступка от физического лица СТАВКА ПО ИПОТЕКЕ ОТ 12.25% Основные характеристики: Общая площадь: 66,9 м² Высота потолков: 3 метра — ощущение простора и свободы! Эргономичная планировка: Кухня — 15,8 м² Комнаты — 15,8 и 14,1 м² Лоджия — 5 м² 2 санузла Преимущества комплекса: Контрастное цветовое решение фасадов и витражное остекление Французские балконы, придающие элегантность и стиль Монолитное строительство с навесными вентилируемыми фасадами из керамогранита — тепло и долговечность на десятки лет Переменная этажность, обеспечивающая много солнечного света в квартирах и дворах Дополнительная информация: Квартира продаётся от физического лица Все документы готовы к сделке Отличный вариант для комфортной жизни или выгодной инвестиций Помощь в одобрении ипотеки под сниженную ставку от 12.25% Арт. 127278752






115 000 ₽/м²
Дом на 3-й Любинской - надежные материалы строительства, комплексные инженерные решения. Все направлено на создание атмосферы комфорта и защищенности по доступной цене.



130 008 ₽/м²
Ул. КАБАНОВА, дом 2 Предлагаем квартиру в новом кирпичном доме по улице Кабанова, дом 2 в микрорайоне Прибрежный -2. Дом сдан. Документы оформлены полностью. Дом из кирпича, с красивым фасадом, удобными планировками квартир и актуальной организацией дворового пространства. В доме 15 этажей с высоким тех этажом. Дом расположен вдали от промышленной зоны, где великолепный вид на берег Иртыша. Квартиры свободной планировки, с высокими потолками 2,85м., с подготовкой под чистовую отделку: окна и лоджии застеклены ПВХ. Площадь квартиры указана с учётом площади лоджии с понижающим коэффициентом 0,5. В квартире установлены алюминиевые радиаторы отопления, счетчики тепла, электричества и водоснабжения. Полы залиты стяжкой, стены оштукатурены. Санузел выделен, оштукатурен. На придомовой территории размещена парковка, детская игровая площадка. Дополнительные преимущества самого развивающегося микрорайона города: 5 минут магазина Лента, новая дорога дублёр - 70 лет Октября, G-Drive Арена. В шаговой доступности школа, садик остановки, Такое жилье не только комфорт повседневной жизни, но и выгодная инвестиция в будущее.



90 385 ₽/м²
Предлагаем вашему вниманию неугловую двухкомнатную квартиру в Омске, расположенную по адресу: проспект Комарова, 27/2. Общая площадь квартиры составляет 52 кв. м. Квартира находится на первом этаже пятиэтажного панельного дома Омской серии, построенного в 1988 году. Высота потолков — 2.6 метра. Окна выходят как на улицу, так и во двор, обеспечивая хорошее естественное освещение. Счетчики на воду, свет, газ. Квартира без ремонта, что дает вам прекрасную возможность воплотить свои идеи и сделать интерьер именно таким, каким вы его себе представляете. Планировка удобная, с просторной кухней 11 кв.м., где можно разместить все необходимое для комфортной готовки. В квартире также есть раздельный санузел, что особенно удобно для семей с детьми. Дом в хорошем состоянии. Это тихий и уютный район с развитой инфраструктурой, что делает проживание здесь максимально комфортным. Рядом с домом находятся школы, детские сады, клиники и магазины. Все необходимое расположено в шаговой доступности. Хорошая транспортная доступность и близость к остановкам общественного транспорта. Подходит под все виды сделок, в том числе ипотеку, мат капитал и военные сертификаты. Без ограничений и обременений. Покупателю: бесплатно помощь в оформлении ипотеки от 14,99%! Приглашаем вас на просмотр этой замечательной квартиры. Записывайтесь на удобное для вас время, чтобы оценить все ее преимущества лично.






190 606 ₽/м²
Продается 2-к квартира без отделки в ЖК "Зеленая Река". Общая площадь квартиры — 54.6 кв. м, этаж 6 из 7. Тип дома — монолитный. Цена указана при 100% оплате.



132 018 ₽/м²
Ипотека от 12,25% Дом сдан! Возможен обмен на строительные материалы! Пространство, комфорт и удобство в одном месте! Представляем вашему вниманию уникальное предложение на рынке недвижимости: продается просторная, светлая квартира в одном из нового микрорайона Левобережья, идеально подходящая для комфортной жизни всей семьи. Характеристики квартиры: Площадь: 67.8 кв. м Количество комнат: 2 Этаж: 4/15 Состояние: Квартира без ремонта! Квартира отличается продуманной планировкой, обеспечивающей максимальное использование пространства. Просторная кухня идеально подходит для семейных обедов и вечеров в кругу близких. Развитая инфраструктура. Открытый двoр с детcкой плoщaдкой. Назeмный пapкинг. Подъезды на личном транспорте свободны в любое время, выезд на магистрали находится в непосредственной близости к расположению дома. Быстрый выход на сделку. Подходит под любые формы расчета. Гарантия юридической чистоты сделки от компании! Арт. 127150446



96 154 ₽/м²
Продается просторная двухкомнатная квартира в 5-м микрорайоне Омска! Идеальное место для комфортной жизни и творчества. Окна выходят на живописную улицу Туполева — отличный вид и свежий воздух! Для кого подойдет эта квартира? • Любителей ремонта: Возможность создать интерьер мечты по своему вкусу, без переплат за чужие идеи. • Инвесторов: Прекрасный объект для прибыльной аренды в перспективном районе. • Семей: Уютное и безопасное пространство для создания семейного гнезда. • Молодых специалистов: Шанс обустроить свое первое собственное жилье с комфортом. • Художников и дизайнеров: Простор для реализации креативных идей и вдохновения. Развитая инфраструктура — все под рукой! • Образование и безопасность: В 5 минутах ходьбы детский сад и школа — удобно и надежно для детей. • Шопинг и развлечения: Рядом гипермаркет "Магнит", ТЦ "Комарова PLAZA", ТЦ "Маяк Молл", кафе-кондитерская "Престиж" и множество супермаркетов. • Отдых на природе: Парк "30 лет Омску" и зеленая аллея Ветеранов — идеально для прогулок и пикников. • Для детей: Детские развивающие центры, бассейны и медицинский центр "До 16-ти" в шаговой доступности. Транспортная доступность: Остановка "5-й микрорайон" прямо у дома! • 11 маршрутов в любую точку города. • Всего 15 минут до центра (ост. "Кинотеатр Маяковского"). • 15 минут до автовокзала. • 20 минут до Телецентра. Функциональная планировка и комфорт: Квартира имеет гибкую планировку, подходящую для любой цели. Тихий, ухоженный двор гарантирует спокойствие и безопасность. Квартира требует ремонта — это ваш шанс сделать все по-своему и создать идеальное пространство! Остались вопросы? Звоните прямо сейчас — мы ответим на все и поможем с просмотром! Не упустите возможность обрести уют в сердце Омска.






131 880 ₽/м²
Продаётся 2-комнатная квартира в сданном доме (Волгоградская, 46 (Строение 2)), срок сдачи: III-кв. 2024, общей площадью 63.2 кв.м., на 6 этаже. Старт продаж квартир в строящемся доме 2. Срок сдачи -4 квартал 2024 г Ипотека с государственной поддержкой, семейная ипотека, траншевая ипотека, it-ипотека, военная ипотека! Современный район новостроек на Левобережье! Развитая инфраструктура микрорайона содержит большое количество современных детских площадок, прогулочных зон. В шаговой доступности детские сады (94, 264), школы (21, 36, 144, школа искусств 14), Медицинский колледж, Колледж Профессиональных Технологий. Продуктовые магазины, гипермаркеты, рыбный рынок, автосервисы. В непосредственной близости находится двухуровневая закрытая парковка для автомобилей. Квартира под отделку. Звоните, записывайтесь на просмотр!



130 093 ₽/м²
Представляем вашему вниманию видовую двухкомнатную квартиру 53.5 кв. м на 13 этаже 15-ти этажного дома по очень выгодной цене. ЖК Зелёная река построен и строится по концепции город в городе, где будет всё необходимое для комфортного проживания жителей этого микрорайона, спортивный комплекс, бассейн, кинотеатр, школы, детские сады, медицинский центр, различные развлекательные центры и кафе. Просторная кухня 11.40кв.м, шикарная лоджия почти 8 кв.м, два санузла. Предчистовая отделка, вся грязная работа уже выполнена, проведена проводка, отштукатурены стены, выполнена стяжка пола, выведены мокрые точки.






176 905 ₽/м²
Продается 2-к квартира без отделки в ЖК "Зеленая Река". Общая площадь квартиры — 57.6 кв. м, этаж 3 из 11. Тип дома — монолитный. Цена указана при 100% оплате.






115 000 ₽/м²
Дом на 3-й Любинской - надежные материалы строительства, комплексные инженерные решения. Все направлено на создание атмосферы комфорта и защищенности по доступной цене.



146 805 ₽/м²
Устали от тесных и тёмных пространств? Эта квартира подарит вам совершенно новое качество жизни — светлую, воздушную и свободную атмосферу. Квартира привлекает не просто планировкой, а продуманным комфортом: Высокие потолки 3 метра — это не просто цифра, а настоящее ощущение простора, которое оценят вы и ваши гости Большая кухня 15,3 м² — идеальное пространство для кухни-гостиной, где поместится и остров, и обеденная зона Обилие света — большие окна на высоком этаже наполняют пространство естественным светом весь день Большая застеклённая лоджия — дополнительное пространство, которое можно превратить в уютный уголок для отдыха с книгой или в продолжение гостиной, откуда открывается приятный вид. Готовность к ремонту — предчистовая отделка с выполненной электрической разводкой, розетками, выключателями и коммуникациями. Стены выровнены, вся пыльная работа уже позади! Ощутите преимущества жизни здесь: Просыпаться в комнате, залитой утренним светом через большие окна. Завтракать на просторной кухне, где нет ощущения тесноты благодаря высоким потолкам. Создать именно тот интерьер, о котором вы мечтали, без лишних затрат на подготовительные работы. Спускаясь во двор, вы попадаете в благоустроенное пространство ЖК "Зеленая река" с концепцией "дворы без машин". Здесь дети играют в безопасности, а у вас есть всё для прогулок и отдыха. Ваш новый уровень комфорта начинается здесь и сейчас! Свяжитесь с нами, чтобы назначить просмотр и лично оценить все преимущества этой светлой и просторной квартиры. Звоните или пишите — отвечу на все вопросы и организую показ в удобное для вас время. Арт. 125547503






189 110 ₽/м²
Продается 2-к квартира без отделки в ЖК "Зеленая Река". Общая площадь квартиры — 56.9 кв. м, этаж 2 из 3. Тип дома — монолитный. Цена указана при 100% оплате.
| 🔷 Средняя цена продажи: | 8,9 млн руб. |
| 🔷 Средняя цена за м2: | 149 тыс. руб./м² |
| 🔷 Минимальная стоимость: | 3,1 млн руб. |
| 🔷 Самый дорогой объект: | 13,3 млн руб. |