


153 516 ₽/м²
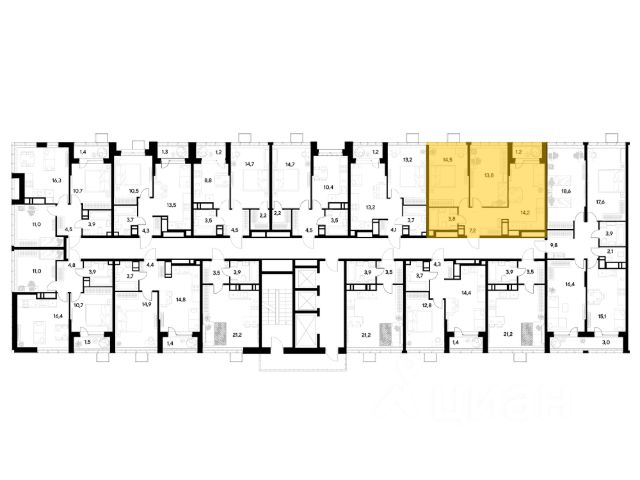
Старт продаж нового дома. Звоните, мы вам все подробно расскажем! Двухкомнатная квартира с предчистовой отделкой в Кварталы Драверта на 6 этаже. Общая площадь: 65.14 кв.м. Высота потолков 2.82 м. Дом монолитный, многоподъездный, переменной этажности, от 8 до 16 этажей. Квартира находится во 2-й секции высотой 8 этажей в корпусе 6. На этаже 9 квартир. В подъезде 1 пассажирский и 1 грузовой лифт. Окончание строительства - 2 квартал 2028 года. Оформление сделки по договору долевого участия. Квартира с кухней-гостиной и двумя спальнями в Кварталах Драверта. Особенности планировки: балкон, предчистовая отделка. квартиры в нашей базе: ДВТ06-Ж2.6.2. "Кварталы Драверта" — проект преобразования левого берега Иртыша, расположенный в одном из самых быстроразвивающихся районов города в границах улиц 3-й Островской, Шаронова, Крупской и 1-й Рыбачьей. С центром его связывают два моста — имени 60-летия ВЛКСМ и 60-летия Победы. В пешей доступности находятся несколько детских садов, продуктовые магазины, кафе, аптеки и остановки общественного транспорта. Во дворе нет машин. Это приватное пространство, попасть в которое могут только жители. Здесь спроектированы: променад, лаунжи с садовой мебелью, где, развалившись на шезлонге, можно почитать или поработать, и детские площадки. Со стороны улицы Крупской мы предусмотрели сквер, со стороны улицы Шаронова — пешеходный бульвар. Эти общественные пространства отделены от двора двухметровыми зелёными изгородями. Они станут локальными точками притяжения и будут способствовать развитию добрососедства. Также за пределами двора мы создали спортивный хаб с баскетбольной площадкой в центре. Напротив мы разместили деревянную зрительскую трибуну, слева — теннисные столы, справа — площадку для паркура. #z69bfD 2-комнатная квартира в Омске.




































































































































































