


81 045 ₽/м²
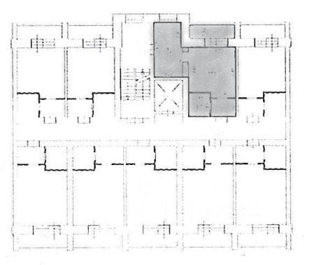
Двухуровневая квартира в доме по ул. 2-я Трамвайная, 39 это особенность индивидуального проекта застройщика. Такое решение позволяет рационально использовать высоту помещений, разделяя зоны отдыха и гостиную. Вход на обоих этажах (на 4-м и 5-м этажах) напрямую с лестничной площадки. Площадь 35,4 кв м, указанная в объявлении, соответствует выписке ЕГРН (есть фото планировки). Регистрация права собственности в ЕГРН проведена в 2023 году. Собственник владеет квартирой на законных основаниях. Продается квартира на 4-м этаже кирпичного девятиэтажного дома по индивидуальному проекту. Дом расположен в экологически чистой зоне, окружен санаториями и спортивными комплексами. Год постройки дома 2022. Общая площадь квартиры 35,4 кв м Установлена новая входная дверь. Квартира позволяет оптимально разделить пространство на функциональные зоны для сна, приема пищи, хранения. В прихожей есть место для гардеробной. Есть дополнительное помещение с окном, радиатором отопления, площадью 7 кв м, которое можно использовать как зону отдыха, спальню, кабинет, гардеробную. Вход отдельный в эту комнату (в квартиру) есть со стороны лестничной площадки (согласовано) или из основной комнаты по дополнительной лестнице. Большая лоджия (6,5 кв м). Окна выходят во двор, не угловая. Черновая отделка - подведены коммуникации разводка электричества до щитка, разводка трубопроводов канализационной системы и водоснабжения, установлены радиаторы отопления, окна ПВХ. Пескобетонная стяжка пола, современные окна ПВХ, установлены все приборы учета. Надежная система отопления и вентиляции. Отдельная вентиляция для кухни и санузла. Совмещенный санузел. На этаже в тамбуре 9 квартир. Установлены камеры видеонаблюдения. Во дворе детская площадка. Рядом с домом большая парковка. Спокойное, тихое место. На этажах и по периметру территории установлены камеры видеонаблюдения Дом обслуживает Управляющая компания Миллениум (ул. Фрунзе, д. 1, корп. 3). Инфраструктура: большой новый микрорайон есть магазины, Школа-интернат 11, школа 100, детский сад 396, Санаторий-профилакторий Железнодорожник, Гостиница Родник, спортивно-восстановительный комплекс Родник, МСЧ 4, Поликлиника 1). В 20 минутах езды до центра города. Недалеко Иртышская набережная, Ленинский пляж. Дом находится в глубине квартала, примерно в 5060 метрах от проезжей части 2-й Трамвайной улицы. Остановка ПТУ-2, МСЧ-4. Гарантируем безопасное и комфортное сопровождение сделки. Оказываем помощь в одобрении ипотеки с выгодной для Вас процентной ставкой.













































































