Первичная продажа



Ипотека для каждого 0,1%
ещё 6 акций
8 668 520 ₽
149 200 ₽/м²
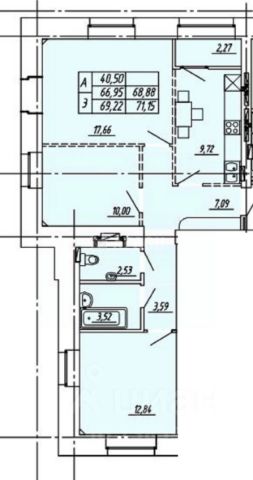
В продаже 2-комнатная квартира от застройщика DOGMA!
ЖК "Снегири", г. Омск, корпус 1 Срок сдачи: (4 кв. 2027, общей площадью 58.1 кв.м., на 8 этаже.)
Район для счастливой жизни "Снегири" - это семейный квартал, который дарит радость простых вещей: тепло дома, безопасность и живую природу рядом.
В этом уютном уголке Омска каждый может быть собой: родители - отдыхать и заниматься спортом, дети - расти и играть в окружении друзей.
Безопасность и комфорт
• Закрытые дворы без машин с видеонаблюдением
• Подземный и многоуровневый надземный паркинги
• Собственная котельная
• Дизайнерские лобби и зоны отдыха
Инфраструктура для семьи
• 2 детских сада, школа и современная поликлиника на территории
• Игровые площадки из натуральных материалов
• Воркаут-зоны, велодорожки и догхаб
• Коммерческие помещения на первых этажах - от продуктовых магазинов до пунктов выдачи и салонов красоты
Продуманные детали
• Квартиры с готовой отделкой и панорамным остеклением
• Специальные места для хранения колясок и велосипедов
• Кладовые помещения
• Насыщенное озеленение территории
Приобрести квартиру можно одним из способов:
• оплата наличными с дополнительной выгодой;
• рассрочка от застройщика до конца строительства;
• ипотека (стандартная, семейная, военная, IT, субсидированная);
• дистанционная покупка из любого города.
Позвоните сейчас, чтобы забронировать квартиру вашей мечты!
ЖК "Снегири" - место, где созданы все условия для счастливой жизни.











































































































