Мы используем куки-файлы. Соглашение об использовании
С мебельюПроверено в Росреестре

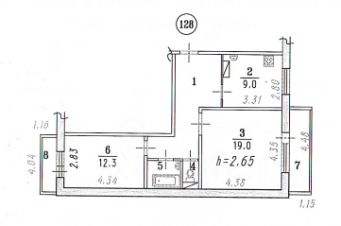
Продается 2-комн. квартира, 60,7 м²

Общая площадь60,7 м²
Жилая площадь31,3 м²
Площадь кухни9 м²
Этаж6 из 10
Год постройки2003
Продается на чистой продаже уютная квартира на левом берегу в самом развитом районе города Омска ( микрорайон Прибрежный ). Общая площадь квартиры 60,7 квадратных метров. Площадь кухни 9 квадратных метров. Жилая площадь квартиры составляет 31,3 квадратных метра. Высота потолков 2,65 м. Квартира юридически чиста, без обременений, без материнского капитала, без несовершеннолетних собственников. Выход на сделку в кратчайшие сроки. В квартире выполнен ремонт. Вместе с квартирой новому собственнику достанется кухонный гарнитур IKEA со встраиваемой техникой Electrolux ( варочная панель - газ, духовой шкаф - электро ). В 2023 году за собственные средства была выполнена качественная межпанельная заделка швов, поэтому в квартире зимой очень тепло. Вместе с квартирой новому собственнику достанется два очень полезных бонуса ( о них расскажем при просмотре квартиры ). Окна квартиры выходят на две стороны. За счет того, что с двух сторон расположены лоджия и балкон, квартира тихая. Соседи добрые, приветливые и дружелюбные люди, всегда готовы прийти на помощь. В шаговой доступности G-Drive Арена, прогулочные аллеи, магазины, школы, детские сады, больницы. Возможен торг. Также рассмотрим варианты обмена на 3-х или 4-х комнатную квартиру в том же районе города Омска ( микрорайон Прибрежный ).
Позвоните автору
Вам ответят на все вопросы

О квартире

Тип жилья

Вторичка

Общая площадь

60,7 м²

Жилая площадь

31,3 м²

Площадь кухни

9 м²

Высота потолков

2,65 м

Санузел

1 раздельный

Балкон/лоджия

1 лоджия, 1 балкон

Вид из окон

На улицу и двор

Ремонт

Евроремонт

Перепланировка

Не было

Продаётся с мебелью

Да

О доме

Год постройки

2003

Количество лифтов

1 пассажирский

Тип дома

Панельный

Тип перекрытий

Железобетонные

Подъезды

7

Парковка

Наземная

Отопление

Центральное

Аварийность

Нет

Газоснабжение

Центральное

Юридические особенности

Несовершеннолетние собственники

Нет

Материнский капитал при покупке

Не использовался

Доступная среда

Входная дверь не указана
Двери в ванную и санузел не указаны
Двери в комнаты и кухню не указаны
Спросите умного помощника
Получите экспертное мнение о жилье
Информация из Росреестра
Обременения
Нет
Площадь
56,6 м²
Этаж
6
Собственников
2
Кадастровый номер
55:36:110101:***

Расположение

Ипотечный калькулятор
  • Базовая
  • Семейная
  • ИТ-ипотека
  • 20%
  • 30%
  • 40%
  • 50%
лет
  • 10 лет
  • 20 лет
  • 30 лет
Загружаем предложения от застройщика и банков
Помощь риелтора
Проверенный риелтор поможет купить или продать квартиру
СобственникID 81295820
    8 400 000 ₽
    Цена за метр
    138 386 ₽/м²
    Условия сделки
    свободная продажа
    Ипотека
    возможна
    СобственникID 81295820