Мы используем куки-файлы. Соглашение об использовании
Общая площадь61 м²
Жилая площадь33 м²
Площадь кухни8 м²
Этаж3 из 3
Год постройки2007
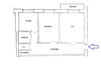
Предлагаем к продаже 2-х комнатную квартиру "сталинку", высота потолков 3 м, Sобщ = 61 кв.м. Дом является объектом культурного наследия, представляет собой культурно - историческую ценность. В ближайший год планируется ремонт фасада здания. Без долгов, без обременений. Квартира свободная от проживающих, прописанных нет. Комнаты изолированные, собственник 1 совершеннолетний. Балкон остеклен и обшит вагонкой. Ключи в агентстве. Покажем в любое удобное для Вас время. Ответим на все интересующие Вас вопросы?
Позвоните автору
Вам ответят на все вопросы

О квартире

Тип жилья

Вторичка

Общая площадь

61 м²

Жилая площадь

33 м²

Площадь кухни

8 м²

Высота потолков

3 м

Санузел

1 раздельный

Балкон/лоджия

1 балкон

Ремонт

Косметический

Перепланировка

Не было

О доме

Год постройки

2007

Тип дома

Кирпичный

Тип перекрытий

Железобетонные

Подъезды

4

Парковка

Наземная

Отопление

Центральное

Аварийность

Нет

Газоснабжение

Центральное

Юридические особенности

Несовершеннолетние собственники

Нет

Материнский капитал при покупке

Не использовался

Спросите умного помощника
Получите экспертное мнение о жилье

Расположение

Ипотечный калькулятор
  • Базовая
  • Семейная
  • ИТ-ипотека
  • 20%
  • 30%
  • 40%
  • 50%
лет
  • 10 лет
  • 20 лет
  • 30 лет
Загружаем предложения от застройщика и банков
Помощь риелтора
Проверенный риелтор поможет купить или продать квартиру
5 990 000 ₽
Цена за метр
98 197 ₽/м²
Условия сделки
свободная продажа
Ипотека
возможна
Агентство недвижимости
Документы проверены