


94 801 ₽/м²
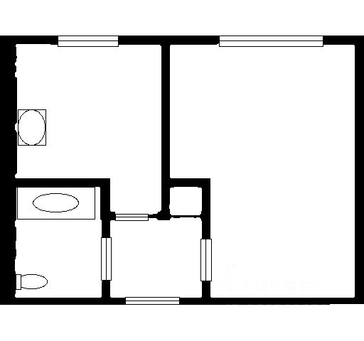
Создай уют под свой вкус в однокомнатной квартире в кирпичном доме,расположенном в тихом месте. Квартире требуется ремонт. Комната неправильной формы дает возможность зонирования,например выделить зону спальни и зону гостиной. На кухне достойного размера в 7,6 кв.м. можно без усилий расположить диван, который станет дополнительным местом отдыха или приема гостей. Большая широкая лоджия вместит как глубокий шкаф в качестве зоны для хранения,так и место для отдыха и релакса. В коридоре можно оборудовать большой шкаф-купе,а так же за счет шкафа увеличить комнату. Широкие подоконники возможно использовать для организации пространства для отдыха, а так же размещения летнего сада или рабочей зоны. Квартира неуголовая,без перепланировок. Подъезд в дом загорожен шлагбаумом В шаговой доступности сад Сибирь, Омская гуманитарная академия, WB,OZON,Магнит,К&Б В саду Сибирь для любителей активного отдыха построена всесезонная спортплощадка, на которой вы сможете поиграть в баскетбол, волейбол, мини-футбол, хоккей, установлен уличный тренажерный комплекс. Один взрослый собственник,без обременений и долгов. Звоните,покажу оперативно!



























































































