


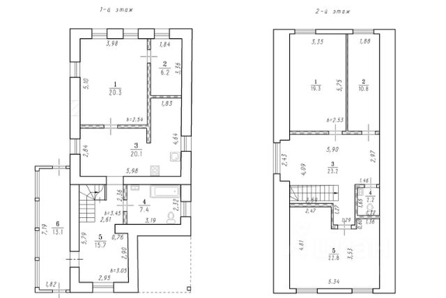
АН Новые кварталы предлагает Вашему вниманию очень уютный 2-х этажный коттедж на 2 семьи (с возможностью объединить) в поселке Чукреевка. Коттедж разделен на 2 половины 180 м2 и 90м2 у каждого имеется свой отдельный вход. Это прекрасная возможность жить со своими близкими в одном доме и в тоже время раздельно. Первая половина - 180 м2 1-ый этаж: - каминный зал с эркером площадью - 26 м2; - кухня-столовая с выходом на террасу - 23м2; - санузел; - бытовая комната; - топочный узел. 2-ой этаж: - спальная комната с эркером - 15.5 м2; - детская комната с выходом на балкон - 14 м2; - гардеробная; - ванная комната с окном 10 м2. Вторая половина - 90 м2 1-ый этаж: - холл с местом под гардероб. 2-ой этаж: - кухня-гостиная - 28 м2; - спальная комната с французским окном - 18 м2; - детская комната - 15 м2; - ванная комната. Так же имеется овощехранилище в цокольном этаже. Во всем доме на первом этаже керамическая плитка с теплым полом. На втором этаже ламинат. При строительстве дома использовались только высококачественные материалы так как строили для своей семьи ни на один год! Коттедж построен из пеноблоков (40*60) на блочном углубленном фундаменте и облицован очень красивым керамическим кирпичом. Крыша покрыта мягкой черепицей и утеплена минеральной ватой - 30 см с использованием мембраны с влаго и ветро защитой. В доме газовая система отопления ( двухконтурный котел Haveen); Канализация и водоснабжение централизованное; Выведен водопроводный узел для бани; Один взрослый собственник Без долгов и обременений Подходит под ипотеку ТОРГ Заинтересовало предложение? Остались вопросы? Звоните!






















































































