20 000 000 ₽
178 571 ₽/м²
Уникальное предложение в кирпичном доме 2006 года постройки с высотой потолков 3,5 метра, в деловом и культурно-историческом центре города. Светлая, просторная, ВИДОВАЯ квартира на пешеходную аллею и Тарские ворота, на слиянии двух рек, возле Тарской крепости. Двор огорожен и закрыт, отдельный выход во внутренний дворик, где вы можете позволить себе посидеть с друзьями за вкусным ужином, приготовленным на мангале, и бокалом игристого, наслаждаясь неспешной жизнью. Эксклюзивный вариант для любителей комфорта и тишины.
Окна ПВХ. Высокие потолки 3м. и большие окна наполняют помещение естественным светом. Прекрасная квартира для реализации своего уникального дизайн проекта, единственное предложение в этой местности.
Инфраструктура этого района заслуживает пристального внимания: Воскресенский собор, Омская крепость, Тарские ворота, Любинский проспект, Набережная реки Иртыш, стадион "Динамо", несколько парков и исторических скверов, фонтаны, Омский Драматический театр, бассейны, кинотеатры, Администрация города. Один из лучших лицеев/школ города 19, университетский колледж агробизнеса, ОмГМУ. О расположении дома можно говорить бесконечно, в этом месте проводят экскурсии о городе, в шаговой доступности музеи и памятники. Близость кафе, ресторанов и мест для прогулки и отдыха, все это будет доступно без применения транспорта.
Прогуливаться по набережной реки или наслаждаться тихим хвойным парком прямо за вашим домом.
Приглашаем Вас на просмотр данного объекта в удобное для Вас время. Один взрослый собственник. Свободна. Никто не прописан. Документы готовы.
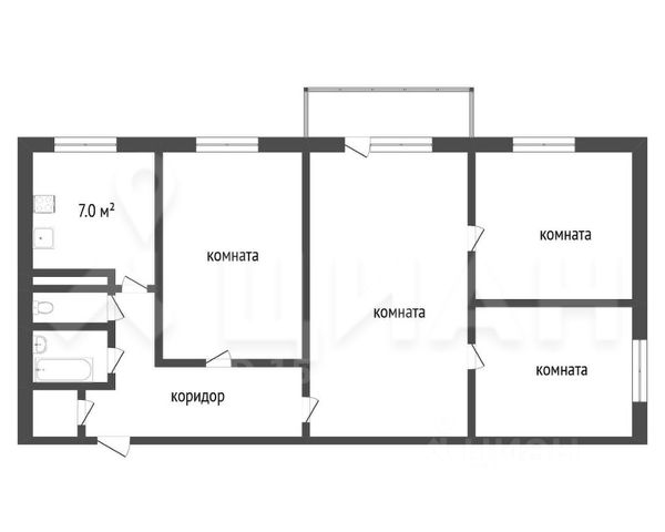
Возможна продажа совместно со смежной квартирой + 101 м.кв. и весь этаж ваш! Продам 4-комнатную квартиру с евроремонтом в Омске.



















































































