Мы используем куки-файлы. Соглашение об использовании

Продается 1-комн. квартира, 30 м²

Общая площадь30 м²
Жилая площадь18 м²
Площадь кухни6 м²
Этаж5 из 5
В квартире выполнен косметический ремонт, что позволяет новым владельцам сразу въехать и чувствовать себя комфортно. Комната находится в хорошем состоянии, а в коридоре установлен вместительный шкаф-купе. Кухня оборудована кухонным гарнитуром и современной газовой плитой . В комнате создана уютная и гармоничная атмосфера. Ванная комната оснащена тумбой и зеркалом, что добавляет функциональности и комфорта. Расположение квартиры очень удобное. Рядом находятся школы 138 и 89, а также три детских сада, что делает ее идеальным вариантом для семей с детьми. В шаговой доступности расположены магазины Магнит, Пятерочка, Ярче и два магазина с различными отделами. Конечная остановка автобусов 6 и 33, а также маршруток находится в непосредственной близости. ID объекта в нашей базе: 4
Позвоните автору
Вам ответят на все вопросы

О квартире

Тип жилья

Вторичка

Общая площадь

30 м²

Жилая площадь

18 м²

Площадь кухни

6 м²

Санузел

1 совмещенный

Балкон/лоджия

1 балкон

Ремонт

Косметический

О доме

Год постройки

1986

Строительная серия

1-447

Тип дома

Кирпичный

Тип перекрытий

Железобетонные

Подъезды

2

Отопление

Центральное

Аварийность

Нет

Газоснабжение

Центральное

Спросите умного помощника
Получите экспертное мнение о жилье
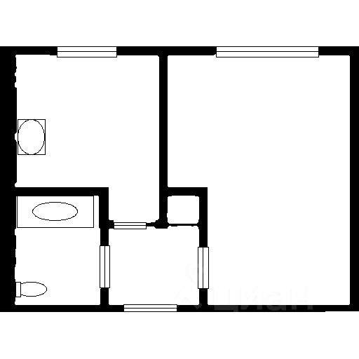
Планировка этой квартирыПо данным Циан
Планировка этой квартиры по данным Циан

Расположение

Ипотечный калькулятор
  • Базовая
  • Семейная
  • ИТ-ипотека
  • 20%
  • 30%
  • 40%
  • 50%
лет
  • 10 лет
  • 20 лет
  • 30 лет
Загружаем предложения от застройщика и банков
Зимой будет тепло
Дома такой же серии обычно хорошо сохраняют тепло
7
Помощь риелтора
Проверенный риелтор поможет купить или продать квартиру
3 195 000 ₽
Цена за метр
106 500 ₽/м²
Условия сделки
свободная продажа
Агентство недвижимости
Суперагент