Мы используем куки-файлы. Соглашение об использовании
Помещение свободного назначения, 1 000 м²
Площадь1 000 м²
Этаж2 из 2
ПомещениеСвободно
Отчёт о привлекательности объектаУзнайте, насколько помещение и район подходят для вашего бизнеса
Что входит в отчёт
  • Охват населения
  • Пешеходный трафик
  • Автомобильный трафик
  • Средний бюджет семьи по району
  • Арендные ставки рядом
  • Точки притяжения
  • Конкуренты в радиусе 1 км
  • Рекомендации по выбору места для бизнеса
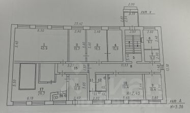
Универсальный производственно-складской комплекс 1000 м² на участке 36 соток Продается капитальная база с полным циклом инфраструктуры по адресу: ул. 4-я Поселковая, 38А. Идеальное решение для производства, логистического центра, автобазы или арендного бизнеса. Главные преимущества: Центральные коммуникации: Водоснабжение, отопление и канализация — центральные во всех основных строениях! Редкое преимущество для промзон. Территория: 36 соток земли, полностью закрытая территория, въезд через ворота. Заасфальтированные подъездные пути, площадка для разворота фур. Энергосистема: Мощность 70 кВт (одномоментная 55 кВт) — хватит для серьезного оборудования. На территории 3 ключевых здания: Административный блок (464 м²): Двухэтажное здание с кабинетной системой. Идеально под офис компании, столовую (уже есть зона приема пищи), комнату охраны и бытовые нужды. 17 кабинетов и 4 санузла — готовое пространство для большого штата. Технический блок / Гараж (283 м²): Два совмещенных бокса (196 м² и 71 м²) с высотой потолков 5.2 м. Ворота высотой до 4.2 м — свободно заходит спецтехника и грузовой транспорт. Производственный цех (190 м²): Специально оборудованное помещение. Уникальная фишка — рельсовая система для выгрузки тяжелых бобин/грузов прямо на улицу. Есть складская зона, душевая и раздевалки для рабочих. Дополнительно: Холодный склад и навес для хранения крупногабаритных материалов. Локация: Удобная транспортная развязка, асфальт до самых ворот. База полностью готова к эксплуатации без дополнительных вложений в инфраструктуру. Звоните! Все подробности по телефону. Оперативный показ в удобное время. Реальному покупателю — конструктивный диалог по цене.
lock

Войдите или зарегистрируйтесь
для просмотра информации

Просматривайте условия сделки и всю информацию об объекте
Сохраняйте фильтры в поиске и не вводите заново
Доступ к избранному с любого устройства
Неограниченное добавление в избранное
Позвоните автору
Вам ответят на все вопросы
Остались вопросы по объявлению?
Позвоните владельцу объявления и уточните необходимую информацию.
  • Инфраструктура
  • Похожие рядом
  • Тип зданияСвободное
  • Категория зданияДействующее
  • Площадь участка0,36 га
  • Общая площадь1 000 м²
  • Статус участкаВ собственности
  • Линия домовИная
Местное кондиционирование
Центральное отопление
Сигнализация
Помощь надёжных риелторов
Риелтор партнёр Циан поможет купить или продать любую недвижимость
Автор объявленияВалерий Ягутов
Суперагент
  • 2 года 7 месяцев на Циане
  • 6 объявлений
  • 80 000 000 ₽
    1 066 674 $
    909 367
    Цена за метр
    80 000 ₽
    Налог
    УСН
    Автор объявленияВалерий Ягутов
    Суперагент