Мы используем куки-файлы. Соглашение об использовании
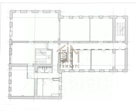
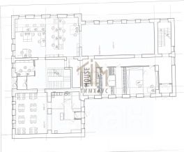
Площадь1 500 м²
Этажность3
Отчёт о привлекательности объектаУзнайте, насколько помещение и район подходят для вашего бизнеса
Что входит в отчёт
  • Охват населения
  • Пешеходный трафик
  • Автомобильный трафик
  • Средний бюджет семьи по району
  • Арендные ставки рядом
  • Точки притяжения
  • Конкуренты в радиусе 1 км
  • Рекомендации по выбору места для бизнеса
Предложение о продаже: Отдельно стоящее офисное здание в Ленинском округе Объект: Трехэтажное офисное здание, общей площадью 1500 кв. м (после реконструкции), расположенное на земельном участке 3214 кв. м. Местоположение: Ленинский округ. Объект обладает удобной транспортной доступностью ко всем районам города, имеет отдельные подъездные пути и собственную парковочную зону. Характеристики здания: Здание кирпичное, прошедшее полную реконструкцию. Проект выполнен с соблюдением всех современных требований к системам пожарной безопасности и условиям труда. Фасад здания дополнительно утеплен и облицован. Внутренние помещения прошли капитальный ремонт с использованием высококачественных материалов. Ремонтные работы завершены на 90%, необходимые материалы для окончательной отделки имеются в наличии. Помещения после ремонта не эксплуатировались. Инженерные системы и инфраструктура: В здании предусмотрена полная инфраструктура для автономной работы, включая: Системы вентиляции и кондиционирования. Серверная с подведенными коммуникациями. Помещение для организации столовой и кухни. Электрощитовая. Кабинет руководителя. Рабочие кабинеты для сотрудников. Прочие вспомогательные и подсобные помещения. Коммуникации: Центральные: отопление, водоснабжение, канализация. Электроснабжение: до 80 кВт. Дополнительная информация: Для получения более подробной информации и организации просмотра объекта, пожалуйста, свяжитесь с нами по указанному телефону.
lock

Войдите или зарегистрируйтесь
для просмотра информации

Просматривайте условия сделки и всю информацию об объекте
Сохраняйте фильтры в поиске и не вводите заново
Доступ к избранному с любого устройства
Неограниченное добавление в избранное
Позвоните автору
Вам ответят на все вопросы
Остались вопросы по объявлению?
Позвоните владельцу объявления и уточните необходимую информацию.
  • Инфраструктура
  • Похожие рядом
Помощь надёжных риелторов
Риелтор партнёр Циан поможет купить или продать любую недвижимость
38 000 000 ₽
503 720 $
430 522
Цена за метр
25 334 ₽
Налог
НДС не включен
Агентство недвижимости
Документы проверены