Мы используем куки-файлы. Соглашение об использовании
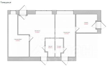
Помещение свободного назначения, 53,9 м²

Продается помещение свободного назначения, 53,9 м²

Площадь53,9 м²
Этаж1 из 5
ПомещениеСвободно
Отчёт о привлекательности объектаУзнайте, насколько помещение и район подходят для вашего бизнеса
Что входит в отчёт
  • Охват населения
  • Пешеходный трафик
  • Автомобильный трафик
  • Средний бюджет семьи по району
  • Арендные ставки рядом
  • Точки притяжения
  • Конкуренты в радиусе 1 км
  • Рекомендации по выбору места для бизнеса
Готовый арендный бизнес с высокой доходностью и отличной локацией. - Срок окупаемости: 5.5 лет - Месячный доход: 150 000 рублей - Основное преимущество: превосходная локация, что обеспечивает стабильный поток клиентов Объект недвижимости: - Тип: нежилое помещение (коммерческая недвижимость) - Объемы: два отдельных помещения, каждое с собственным входом, стена между квартирами- студиями 500 мм.. - Расположение: первый этаж пятиэтажного жилого дома, построенного в 1965 году. - Состояние: полностью оборудовано, меблировано, выполнен качественный ремонт.. - При продаже: в помещении остается все, что изображено на фото. Звоните! Рады будем ответить на все ваши вопросы.. Арт. 132017126
lock

Войдите или зарегистрируйтесь
для просмотра информации

Просматривайте условия сделки и всю информацию об объекте
Сохраняйте фильтры в поиске и не вводите заново
Доступ к избранному с любого устройства
Неограниченное добавление в избранное
Позвоните автору
Вам ответят на все вопросы
Остались вопросы по объявлению?
Позвоните владельцу объявления и уточните необходимую информацию.
  • Инфраструктура
  • Похожие рядом
  • Общая площадь53,9 м²
Центральное отопление
Помощь надёжных риелторов
Риелтор партнёр Циан поможет купить или продать любую недвижимость
8 500 000 ₽
111 478 $
95 359
Цена за метр
157 700 ₽
Налог
НДС включен: 1 532 786 ₽
Агентство недвижимости
Документы проверены
На Циан
8 лет
Объектов в работе
618