Мы используем куки-файлы. Соглашение об использовании
Помещение свободного назначения, 991,9 м²

Сдается помещение свободного назначения, 991,9 м²

Площадь991,9 м²
Этаж3 из 3
ПомещениеСвободно
Отчёт о привлекательности объектаУзнайте, насколько помещение и район подходят для вашего бизнеса
Что входит в отчёт
  • Охват населения
  • Пешеходный трафик
  • Автомобильный трафик
  • Средний бюджет семьи по району
  • Арендные ставки рядом
  • Точки притяжения
  • Конкуренты в радиусе 1 км
  • Рекомендации по выбору места для бизнеса
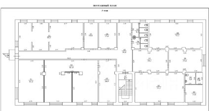
Сдается в аренду помещение свободного назначения — второй и третий этажи в одном здании. Общая арендуемая площадь составляет 991,9 м². Пространство можно взять целиком или разделить на два независимых блока — подойдет для компаний любого масштаба. На втором этаже (480,2 м²) — готовая офисная структура: 12 кабинетов от 10 до 50,1 м², 8 отдельных помещений от 3 до 45,6 м², два санузла. Здесь удобно разместить классический офис, отделы, переговорные. На третьем этаже: 8 кабинетов от 13,6 до 83,8 м², просторный холл 29,1 м², три санузла, два дополнительных помещения (11,6 м² и 65,1 м²) для склада, серверной или комнаты отдыха. Благодаря свободному назначению здесь можно открыть офис, медицинский или образовательный центр, производство, коворкинг или разместить несколько арендаторов одновременно. Расположение: рядом зона жилых домов, в шаговой доступности магазины Пятёрочка, Магнит, пункт выдачи Wildberries. Живой поток потенциальных клиентов — благодаря близости жилой застройки и объектов инфраструктуры ваша аудитория всегда рядом. Условия аренды: арендная плата + коммунальные платежи Звоните, покажем объект и расскажем все подробнее!
lock

Войдите или зарегистрируйтесь
для просмотра информации

Просматривайте условия сделки и всю информацию об объекте
Сохраняйте фильтры в поиске и не вводите заново
Доступ к избранному с любого устройства
Неограниченное добавление в избранное
Позвоните автору
Вам ответят на все вопросы
Остались вопросы по объявлению?
Позвоните владельцу объявления и уточните необходимую информацию.
  • Инфраструктура
  • Похожие рядом
  • Площадь участка0 га
  • Общая площадь991,9 м²
  • Статус участкаВ собственности
Естественная вентиляция
Местное кондиционирование
Центральное отопление
Помощь надёжных риелторов
Риелтор партнёр Циан поможет купить или продать любую недвижимость
347 165 ₽/мес.

Прямая аренда (от года), минимальный срок аренды 11 месяцев, предоплата за 1 месяц

4 597 $/мес.
3 932 /мес.
Цена за метр
4 200 ₽ в год
Налог
УСН
Комиссия
нет
Коммунальные платежи
не включены
Эксплуатационные расходы
не включены
Агентство недвижимости
Суперагент
На Циан
9 лет
Объектов в работе
34