Мы используем куки-файлы. Соглашение об использовании
Помещение свободного назначения, 480,2 м²

Сдается помещение свободного назначения, 480,2 м²

Площадь480,2 м²
Этаж2 из 3
ПомещениеСвободно
Отчёт о привлекательности объектаУзнайте, насколько помещение и район подходят для вашего бизнеса
Что входит в отчёт
  • Охват населения
  • Пешеходный трафик
  • Автомобильный трафик
  • Средний бюджет семьи по району
  • Арендные ставки рядом
  • Точки притяжения
  • Конкуренты в радиусе 1 км
  • Рекомендации по выбору места для бизнеса
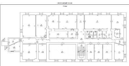
Сдается в аренду помещение свободного назначения на втором этаже — с продуманной планировкой и гибкими возможностями для бизнеса. Общая площадь — 480,2 м². Пространство разделено на удобные зоны: 12 кабинетов — от 10 до 50,1 м²; 8 отдельных помещений — от 3 до 45,6 м². Есть 2 санузла. Всё это позволяет работать как единым офисом, так и сдавать отдельные кабинеты под конкретные задачи — от классических арендаторов до коворкинга, образовательных классов, медицинских кабинетов, студий или складов небольшого формата. Второй этаж обеспечивает спокойную рабочую атмосферу Расположение: рядом зона жилых домов, в шаговой доступности магазины Пятёрочка, Магнит, пункт выдачи Wildberries. Живой поток потенциальных клиентов — благодаря близости жилой застройки и объектов инфраструктуры ваша аудитория всегда рядом. Условия аренды: арендная плата + коммунальные платежи; Звоните, проведем показ и расскажем обо всем подробнее!
lock

Войдите или зарегистрируйтесь
для просмотра информации

Просматривайте условия сделки и всю информацию об объекте
Сохраняйте фильтры в поиске и не вводите заново
Доступ к избранному с любого устройства
Неограниченное добавление в избранное
Позвоните автору
Вам ответят на все вопросы
Остались вопросы по объявлению?
Позвоните владельцу объявления и уточните необходимую информацию.
  • Инфраструктура
  • Похожие рядом
  • Площадь участка0 га
  • Общая площадь480,2 м²
  • Статус участкаВ собственности
Естественная вентиляция
Местное кондиционирование
Центральное отопление
Помощь надёжных риелторов
Риелтор партнёр Циан поможет купить или продать любую недвижимость
168 070 ₽/мес.

Прямая аренда (от года), минимальный срок аренды 11 месяцев, предоплата за 1 месяц

2 225 $/мес.
1 904 /мес.
Цена за метр
4 200 ₽ в год
Налог
УСН
Комиссия
нет
Коммунальные платежи
не включены
Эксплуатационные расходы
не включены
Агентство недвижимости
Суперагент
На Циан
9 лет
Объектов в работе
34