Мы используем куки-файлы. Соглашение об использовании

Сдается торговая площадь, 61,8 м²

Площадь61,8 м²
Этаж1 из 5
Отчёт о привлекательности объектаУзнайте, насколько помещение и район подходят для вашего бизнеса
Что входит в отчёт
  • Охват населения
  • Пешеходный трафик
  • Автомобильный трафик
  • Средний бюджет семьи по району
  • Арендные ставки рядом
  • Точки притяжения
  • Конкуренты в радиусе 1 км
  • Рекомендации по выбору места для бизнеса
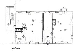
Площадь предлагаемого помещения 61,8 м2. Нежилое помещение свободного назначения. Первый этаж пятиэтажного дома. Высота потолка 2,7 м. Планировка: общий тамбур, два основных помещения. Имеется санузел. Окна ПВХ. Счетчики. Хорошее состояние объекта дает возможность начать бизнес без дополнительных вложений. Деловой центр города. Центральная магистраль, высокий трафик, первая линия домов. Парковка. В данной локации значительное количество бизнесов, соседство с банками, крупными торговыми комплексами. Видовое место. В шаговой доступности остановки общественного транспорта Жемчужина, Голубой огонек, 1000 мелочей. Парковка. Это отличная инвестиционная возможность для тех, кто хочет вложить средства в недвижимость с высоким потенциалом доходности Предложение от собственника. Стоимость 1 м2 1 000 р. плюс коммунальные платежи
lock

Войдите или зарегистрируйтесь
для просмотра информации

Просматривайте условия сделки и всю информацию об объекте
Сохраняйте фильтры в поиске и не вводите заново
Доступ к избранному с любого устройства
Неограниченное добавление в избранное
Позвоните автору
Вам ответят на все вопросы
Остались вопросы по объявлению?
Позвоните владельцу объявления и уточните необходимую информацию.
  • Инфраструктура
  • Похожие рядом
  • Общая площадь61,8 м²
Помощь надёжных риелторов
Риелтор партнёр Циан поможет купить или продать любую недвижимость
Агентство недвижимости
Суперагент
61 800 ₽/мес.

Прямая аренда (от года), минимальный срок аренды 11 месяцев, обеспечительный платёж 61800 ₽, предоплата за 1 месяц

862 $/мес.
742 /мес.
Цена за метр
12 000 ₽ в год
Налог
УСН
Комиссия
нет
Коммунальные платежи
не включены
Эксплуатационные расходы
не включены
Агентство недвижимости
Суперагент
На Циан
3 года
Объектов в работе
94