Мы используем куки-файлы. Соглашение об использовании
Помещение свободного назначения, 500 м²

Сдается помещение свободного назначения, 500 м²

Площадь500 м²
Этаж4 из 5
ПомещениеСвободно
Отчёт о привлекательности объектаУзнайте, насколько помещение и район подходят для вашего бизнеса
Что входит в отчёт
  • Охват населения
  • Пешеходный трафик
  • Автомобильный трафик
  • Средний бюджет семьи по району
  • Арендные ставки рядом
  • Точки притяжения
  • Конкуренты в радиусе 1 км
  • Рекомендации по выбору места для бизнеса
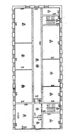
Аренда от собственника, без комиссии Помещение свободного назначения, 500 м2, занимая полностью весь этаж, находится на 4 этаже 5-ти этажного административного здания (в его левой половине). Кабинетная планировка, окна выходят на обе стороны. Светлое теплое пространство с высоким потолком создаст комфортные условия для вашего бизнеса в центре города. Две лестницы: одна центральная, вторая ведет во двор. Большая парковка во дворе и перед зданием будет оснащена шлагбаумами. Отопление входит в стоимость аренды, свет и вода оплачиваются отдельно по счетчикам. Предоставляются арендные каникулы с оплатой коммунальных услуг на время ремонта, срок обсуждается индивидуально. Лифт отсутствует, но собственник готов рассмотреть его установку - обсуждается с арендаторами. Ваш будущий сосед на первых трех этажах уже начал делать ремонт (медицина). В правой половине здания находятся: Охрана Росгвардии, Территориальный фонд геологической информации, Промэнергосервис. Остановка общественного транспорта в 10 минутах ходьбы. (возле Центрального рынка). Звоните! Ответим на ваши вопросы и организуем показ в удобное Вам время.
lock

Войдите или зарегистрируйтесь
для просмотра информации

Просматривайте условия сделки и всю информацию об объекте
Сохраняйте фильтры в поиске и не вводите заново
Доступ к избранному с любого устройства
Неограниченное добавление в избранное
Позвоните автору
Вам ответят на все вопросы
Остались вопросы по объявлению?
Позвоните владельцу объявления и уточните необходимую информацию.
  • Инфраструктура
  • Похожие рядом
  • Общая площадь500 м²
Помощь надёжных риелторов
Риелтор партнёр Циан поможет купить или продать любую недвижимость
150 000 ₽/мес.
2 004 $/мес.
1 714 /мес.
Цена за метр
3 600 ₽ в год
Налог
УСН
Комиссия
нет
Коммунальные платежи
не включены
Эксплуатационные расходы
не включены
Агентство недвижимости
Суперагент