Мы используем куки-файлы. Соглашение об использовании
Площадь669,4 м²
Этаж1 из 1
Выс. потолков6.6 м.
Отчёт о привлекательности объектаУзнайте, насколько помещение и район подходят для вашего бизнеса
Что входит в отчёт
  • Охват населения
  • Пешеходный трафик
  • Автомобильный трафик
  • Средний бюджет семьи по району
  • Арендные ставки рядом
  • Точки притяжения
  • Конкуренты в радиусе 1 км
  • Рекомендации по выбору места для бизнеса
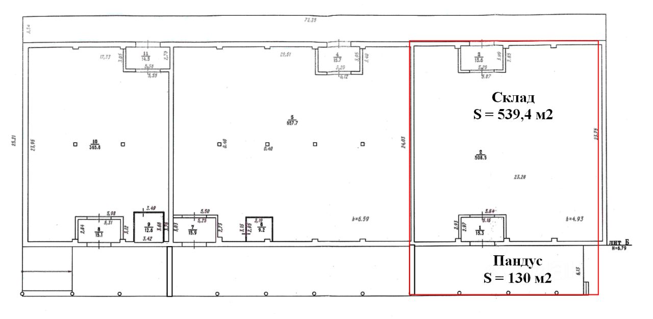
На складе общей площадью 2 065,9 м2 собственник предлагает арендовать помещение площадью 669,4 м2, в составе которого склад площадью 539,4 м2 и крытый пандус (130 м2). Высота потолка 6,59 м. Пол асфальт. Помещение отапливаемое. Отдельный вход. Имеется умывальник, санузел. Стоимость 300 руб. за 1 м. Коммунальные платежи не включены. От собственника, без комиссии.
lock

Войдите или зарегистрируйтесь
для просмотра информации

Просматривайте условия сделки и всю информацию об объекте
Сохраняйте фильтры в поиске и не вводите заново
Доступ к избранному с любого устройства
Неограниченное добавление в избранное
Позвоните автору
Вам ответят на все вопросы
Остались вопросы по объявлению?
Позвоните владельцу объявления и уточните необходимую информацию.
  • Инфраструктура
  • Похожие рядом
Помощь надёжных риелторов
Риелтор партнёр Циан поможет купить или продать любую недвижимость
Агентство недвижимости
Суперагент
200 820 ₽/мес.

Прямая аренда (от года), минимальный срок аренды 11 месяцев, обеспечительный платёж 200820 ₽, предоплата за 1 месяц

2 691 $/мес.
2 285 /мес.
Цена за метр
3 600 ₽ в год
Налог
УСН
Комиссия
нет
Коммунальные платежи
не включены
Эксплуатационные расходы
не включены
Агентство недвижимости
Суперагент
На Циан
3 года
Объектов в работе
88