Мы используем куки-файлы. Соглашение об использовании
Помещение свободного назначения, 750 м²

Сдается помещение свободного назначения, 750 м²

Площадь750 м²
Этаж1 из 1
ПомещениеСвободно
Отчёт о привлекательности объектаУзнайте, насколько помещение и район подходят для вашего бизнеса
Что входит в отчёт
  • Охват населения
  • Пешеходный трафик
  • Автомобильный трафик
  • Средний бюджет семьи по району
  • Арендные ставки рядом
  • Точки притяжения
  • Конкуренты в радиусе 1 км
  • Рекомендации по выбору места для бизнеса
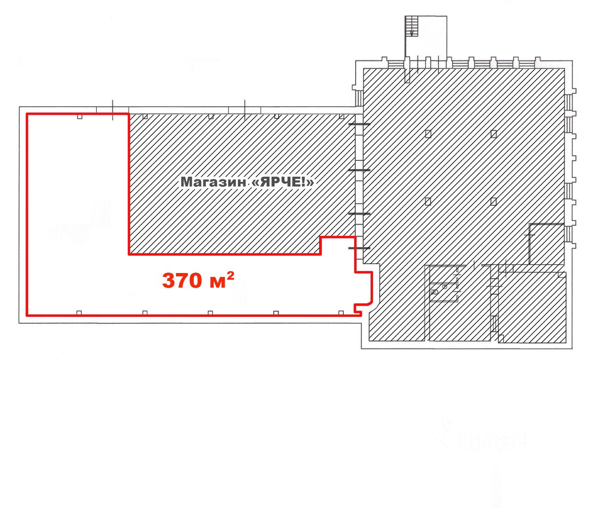
Помещение склад-магазин, под свободное назначение 370 м кв. Высота потолков: 4 - 6 м Тип пола: обеспыленный бетон, везде один уровень Отопление: центральное - автоматизированный теплоузел Выделенная электрическая мощность; 10 кВт, возможно увеличение Парковка: на 20 машиномест, земля в собственности Есть отдельный вход. Соседняя дверь - продуктовый магазин "Ярче!", магазин электрики Дополнительная информация: Здание расположено в густонаселённом жилом массиве города Омска. Напротив помещения находится остановка общественного транспорта,пешеходный переход, трамвайное кольцо. Зона погрузки-разгрузки для разгрузки большегрузных автомобилей. Помещение в хорошем состоянии. Объект введён в эксплуатацию в 2022 году.
lock

Войдите или зарегистрируйтесь
для просмотра информации

Просматривайте условия сделки и всю информацию об объекте
Сохраняйте фильтры в поиске и не вводите заново
Доступ к избранному с любого устройства
Неограниченное добавление в избранное
Позвоните автору
Вам ответят на все вопросы
Остались вопросы по объявлению?
Позвоните владельцу объявления и уточните необходимую информацию.
  • Инфраструктура
  • Похожие рядом
  • Общая площадь750 м²
Приточная вентиляция
Центральное отопление
Сигнализация
Помощь надёжных риелторов
Риелтор партнёр Циан поможет купить или продать любую недвижимость
СобственникID 108580875
    180 000 ₽/мес.

    Прямая аренда (от года), минимальный срок аренды 11 месяцев, предоплата за 1 месяц

    2 367 $/мес.
    2 008 /мес.
    Цена за метр
    2 880 ₽ в год
    Налог
    УСН
    Комиссия
    1%
    Коммунальные платежи
    не включены
    Эксплуатационные расходы
    не включены
    СобственникID 108580875