


151 714 ₽/м²
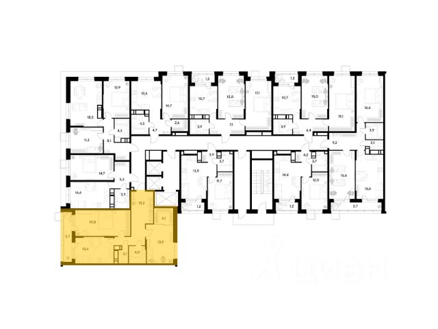
Старт продаж нового дома. Информация по телефону, наши менеджеры вам все расскажут. Просторная 2-комн. квартира с предчистовой отделкой в Кварталы Драверта на 7 этаже. Общая площадь: 86.94 кв.м., жилая: 29 кв.м., площадь просторной кухни-гостиной: 30.5 кв.м. Комнаты изолированные, все окна выходят на одну сторону. В квартире один балкон, два совмещенных санузла. Высота потолков 2.8 м. Дом монолитный, многоподъездный, переменной этажности, от 7 до 14 этажей. Квартира находится в 1-й секции высотой 14 этажей в корпусе 4. На этаже 6 квартир. В подъезде 1 пассажирский и 1 грузовой лифт. Окончание строительства - 2 квартал 2028 года. Оформление сделки по договору долевого участия. Квартира с кухней-гостиной и двумя спальнями в Кварталах Драверта. Особенности планировки: балкон, гардеробная, мастер-спальня, предчистовая отделка, разнесённые спальни. квартиры в нашей базе: ДВТ04-Ж1.7.6. "Кварталы Драверта" — проект преобразования левого берега Иртыша, расположенный в одном из самых быстроразвивающихся районов города в границах улиц 3-й Островской, Шаронова, Крупской и 1-й Рыбачьей. С центром его связывают два моста — имени 60-летия ВЛКСМ и 60-летия Победы. В пешей доступности находятся несколько детских садов, продуктовые магазины, кафе, аптеки и остановки общественного транспорта. Во дворе нет машин. Это приватное пространство, попасть в которое могут только жители. Здесь спроектированы: променад, лаунжи с садовой мебелью, где, развалившись на шезлонге, можно почитать или поработать, и детские площадки. Со стороны улицы Крупской мы предусмотрели сквер, со стороны улицы Шаронова — пешеходный бульвар. Эти общественные пространства отделены от двора двухметровыми зелёными изгородями. Они станут локальными точками притяжения и будут способствовать развитию добрососедства. Также за пределами двора мы создали спортивный хаб с баскетбольной площадкой в центре. Напротив мы разместили деревянную зрительскую трибуну, слева — теннисные столы, справа — площадку для паркура.






















































































































